Location carré d'or 13008, appartement T4 terrasse et box double


< Retour

Partager sur

gallery loader
Exclusivité Nouveauté

Appartement 139 m² - 5 Pièces - Marseille 2 600 € CC*


Description de l'offre Ref 111


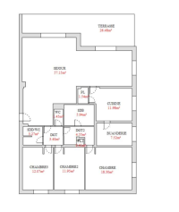
Carré d'Or 13008, "Villa Cadenelle" Extrêmement bien situé, dans une petite copropriété récente au calme et bénéficiant d'un box double, appartement lumineux (triple exposition) de 139 m2 desservant 3 chambres, un grand séjour avec cuisine semie ouverte, buanderie et cellier, salle de bain et salle d'eau. L'appartement jouit également d'une terrasse plein sud d'environ 26 m2 sans vis à vis. Disponible immediate. Loyer 2167€ + provisions sur charges 483 € avec ordures menagères (Honoraires location 1807 € dont état des lieux). Logement eco "C", emission "C", estimation énergétique entre 1470 € et 20240 / an. Diagnostic du 16.01.26. Les informations sur les risques auxquels ce bien est exposé sont disponibles sur le site : www.georisques.gouv.fr

Diagnostics de performance énergétique


DPE
DPE
DPE en cours

Descriptif du bien


Code postal 13008


Surface habitable (m²) 139 m²


Surface loi Boutin (m²) 139,26 m²


Nombre de chambre(s) 3


Nombre de pièces 5


Meublé Non renseigné


Etage 2


Ascenseur OUI


Vue Dégagée


Nb de salle de bains 1


Nb de salle d'eau 1


Mode de chauffage Autre


Type de chauffage Au sol


Format de chauffage Collectif


Interphone OUI


Terrasse OUI


Nombre de garage 2


Exposition SUD


Copropriété NON


Loyer CC* / mois 2 600 €


Honoraires TTC charge locataire 1 807 €


Dont état des lieux 417 €


Dépôt de garantie TTC 2 167 €


Charges locatives (provision donnant lieu à régularisation annuelle) 483 €


Cette annonce vous intéresse ?


* Champs obligatoires

* : Les informations recueillies sur ce formulaire sont enregistrées dans un fichier informatisé par La Boite Immo agissant comme Sous-traitant du traitement pour la gestion de la clientèle/prospects de l'Agence / du Réseau qui reste Responsable du Traitement de vos Données personnelles. La base légale du traitement repose sur l'intérêt légitime de l'Agence / du Réseau. Elles sont conservées jusqu'à demande de suppression et sont destinées à l'Agence / au Réseau. Conformément à la loi « informatique et libertés », vous disposez des droits d’accès, de rectification, d’effacement, d’opposition, de limitation et de portabilité de vos données. Vous pouvez retirer votre consentement à tout moment en contactant directement l’Agence / Le Réseau. Consultez le site https://cnil.fr/fr pour plus d’informations sur vos droits. Si vous estimez, après avoir contacté l'Agence / le Réseau, que vos droits « Informatique et Libertés » ne sont pas respectés, vous pouvez adresser une réclamation à la CNIL. Nous vous informons de l’existence de la liste d'opposition au démarchage téléphonique « Bloctel », sur laquelle vous pouvez vous inscrire ici : https://www.bloctel.gouv.fr Dans le cadre de la protection des Données personnelles, nous vous invitons à ne pas inscrire de Données sensibles dans le champ de saisie libre.
Ce site est protégé par reCAPTCHA, les Politiques de Confidentialité et les Conditions d'Utilisation de Google s'appliquent.

* CC : Charges comprises