Cap et Sainte Immobilier Agence
Télécharger la fiche

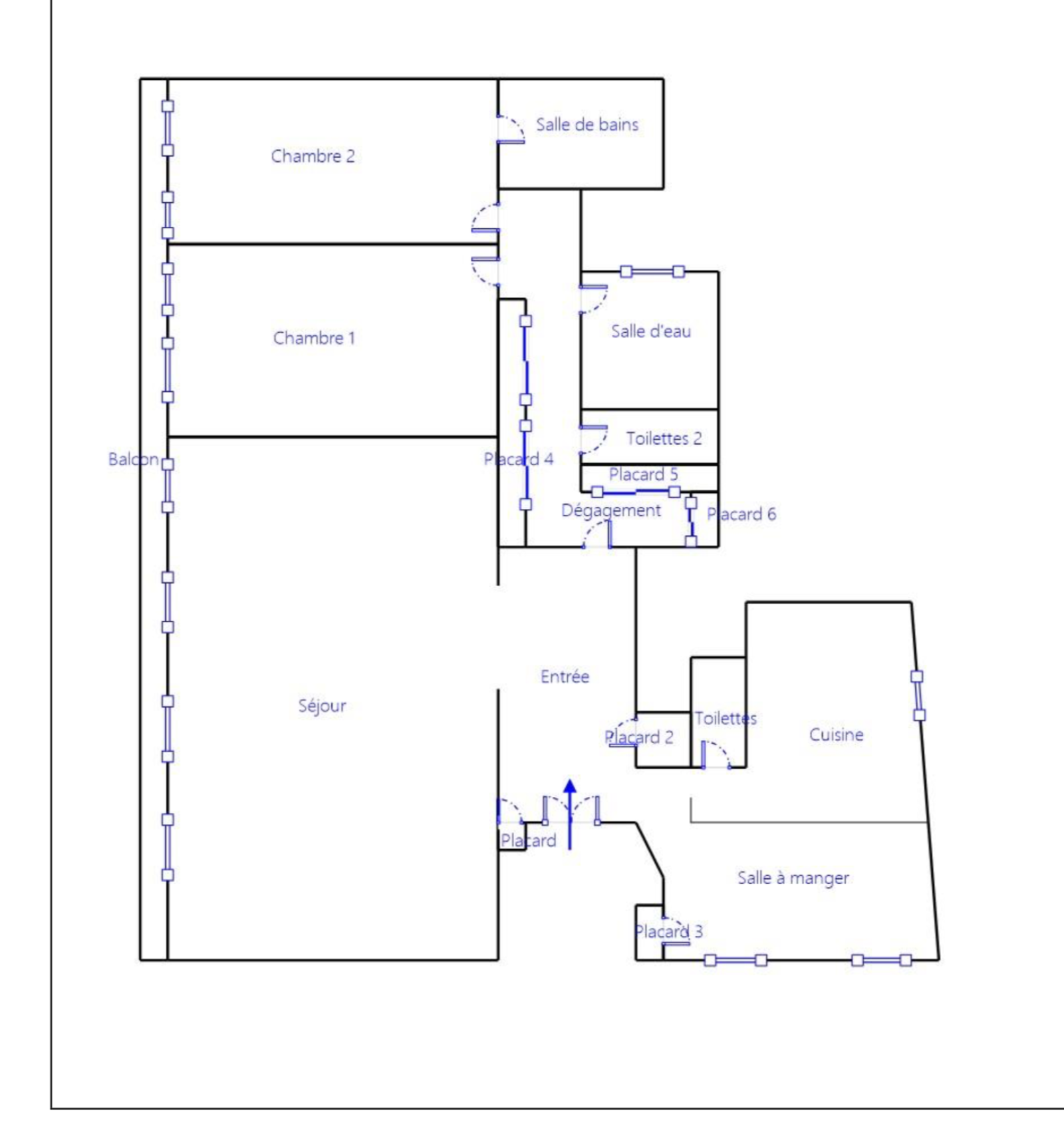
Appartement 3 pièce(s) 2 chambre(s) 148 m²

Marseille (13006)
1 900 € CC* * Charges comprises Référence 070

A propos de ce bien

Cours Pierre PUGET. Dans beau bourgeois, bien situé, à proximité des transports, écoles et commerces, appartement de 148 m2 situé au 5e étage avec ascenseur. L'appartement jouit d'une triple exposition, d'une vue dégagée, d'un immense séjour Sud avec 4 fenêtres et cheminée fonctionnelle, d'une grande et lumineuse cuisine beneficiant d'une double exposition. Deux chambres, deux toilettes, une salle d'eau et une salle de bain complètent ce bien. Metro Estrangin aux pieds de l'immeuble! DPE consommation C, emissions B, estimation de la consommation électrique annuelle 996 € (dont abonnement). Disponibilite mi octobre.

Caractéristiques de ce bien

  • Surface 148 m²
  • carrez 148,90 m²
  • 2 chambre(s)
  • 1 salle(s) de bain
  • 1 salle(s) d'eau
  • construit en 1945
  • cuisine américaine (semi-équipée)
  • Chauffage individuel : air pulsé (climatisation)
  • Chauffage individuel : convecteur (electrique)
  • Chauffage individuel : cheminée (bois)
  • exposition Sud
  • 5ème étage
  • 6 étage(s)
  • ascenseur
  • vue Degagée Notre Dame
  • balcon
  • visiophone
  • interphone

Diagnostics énergétiques

DPE
GES
DPE ANCIENNE VERSION

Informations financières

Loyer CC* / mois 1 900 €
Honoraires TTC charge locataire 1 924 €
Dont état des lieux 444 €
Dépôt de garantie TTC 1 700 €
Charges locatives (provision donnant lieu à régularisation annuelle) 200 €

Autour du bien

  • Commerces et santé
  • Loisirs
  • Ecoles
  • Transports
  • Pratique