Cap et Sainte Immobilier Agence
Télécharger la fiche
Prix en baisse

Duplex 5 pièce(s) 3 chambre(s) 182 m²

Marseille (13008)
798 000 € Référence 109

A propos de ce bien

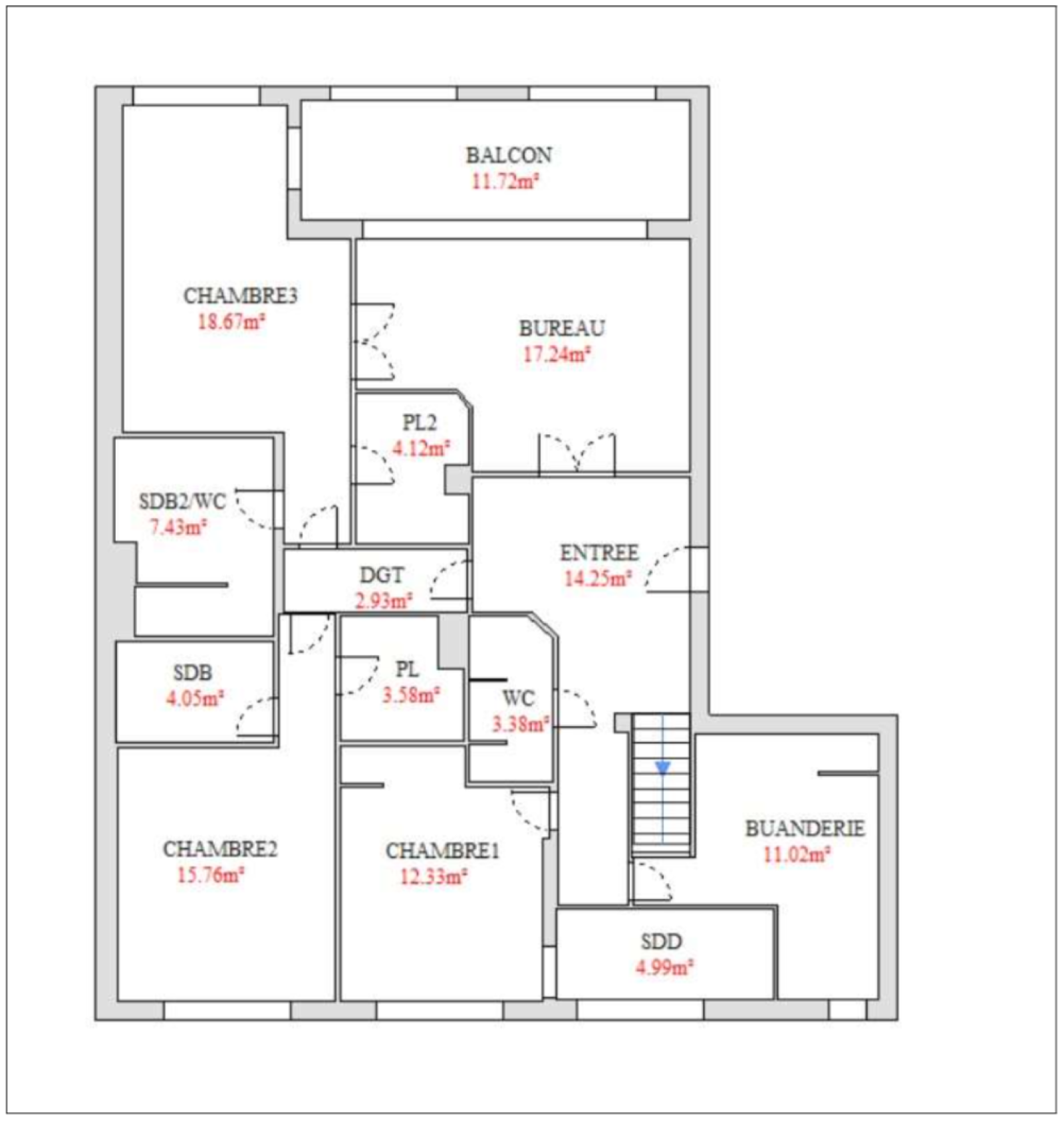
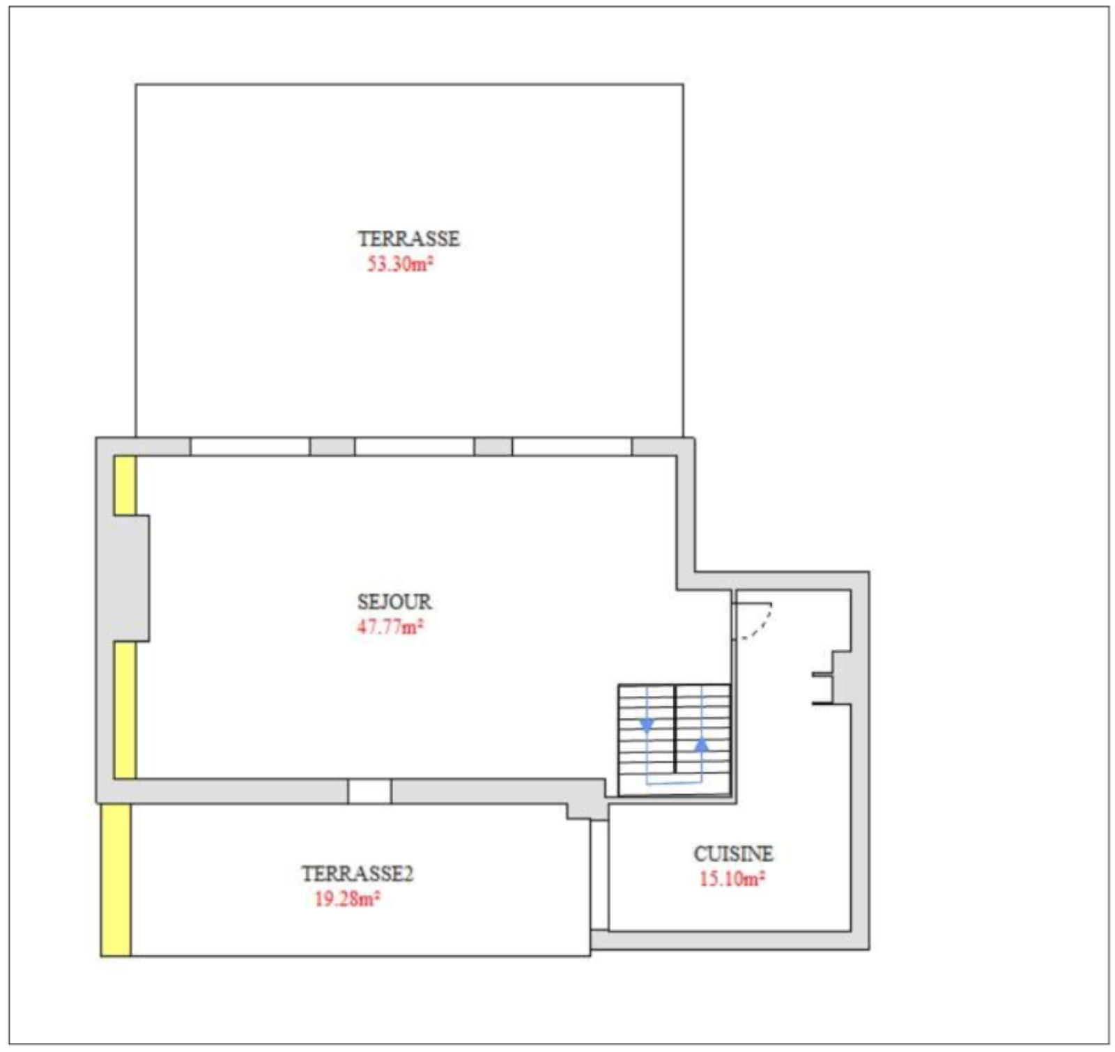
Secteur Daumier / Prado, penthouse de 182 m2 habitables idéalement situé ! A proximité de toutes les commodités, ce duplex est niché au dernier étage d’un immeuble récent. Au calme et traversant Sud/Nord, il offre deux terrasses accessibles du séjour et de la cuisine. Au premier niveau, le hall d’entrée dessert 3 chambres toutes avec pièce d’eau, et, espace dressing / rangements. Le deuxième niveau offre un grand séjour et une cuisine séparée. Ce séjour donne accès à une terrasse plein Sud de 53 m2 et la cuisine une terrasse de 19 m2 au Nord. Une cave et un grand parking en sous-sol pouvant accueillir plusieurs voitures parachèvent ce bien rare à la vente. Toutes les commodités à pieds… écoles, commerces et transports en commun… mais aussi les axes routiers à proximité. Vivez Marseille autrement ! Travaux à prévoir. DPE du 12.06.25 consommation énergétique D, émission gaz à effet de serre B, estimation annuelle d’énergie entre 3020 € et 4140 € par an abonnements compris. Copropriété composée de 10 lots. Les informations sur les risques auxquels ce bien est exposé sont disponibles sur le site : www.georisques.gouv.frPlus de photos et renseignements sur le site capetsainte-immo

Caractéristiques de ce bien

  • Surface 182 m²
  • carrez 182,62 m²
  • séjour 47,77 m²
  • 3 chambre(s)
  • 2 salle(s) de bain
  • 1 salle(s) d'eau
  • construit en 1970
  • cuisine séparée (semi-équipée)
  • Chauffage individuel : air pulsé (climatisation)
  • Chauffage collectif : radiateur (electrique)
  • 3 garage(s)
  • exposition Nord-Sud
  • 2 niveau(x)
  • 4ème étage
  • 4 étage(s)
  • ascenseur
  • vue Dégagée Urbaine
  • cave
  • balcon
  • terrasse

Diagnostics énergétiques

DPE
GES
DPE en cours

Informations financières

Prix de vente honoraires TTC inclus 798 000 €
Prix de vente honoraires TTC exclus 770 000 €
Honoraires TTC à la charge acquéreur 3,64 %
Charges 354 €
Taxe foncière annuelle 4 242 €

Informations de copropriété

Copropriété Oui
Lot n° 10
Nombre de lots 35
Quote part annuelle des charges 4 256 €

Autour du bien

  • Commerces et santé
  • Loisirs
  • Ecoles
  • Transports
  • Pratique

Calcul des mensualités

* Champs obligatoires